Home
About
Realizzazioni
Terziario
Urbanistica
Residenziale
Pubblicazioni & Concorsi
Studi
Contatti
bar
bar
bar
bar
bar
bar
Home
About
Realizzazioni
Terziario
Urbanistica
Residenziale
Pubblicazioni & Concorsi
Studi
Contatti
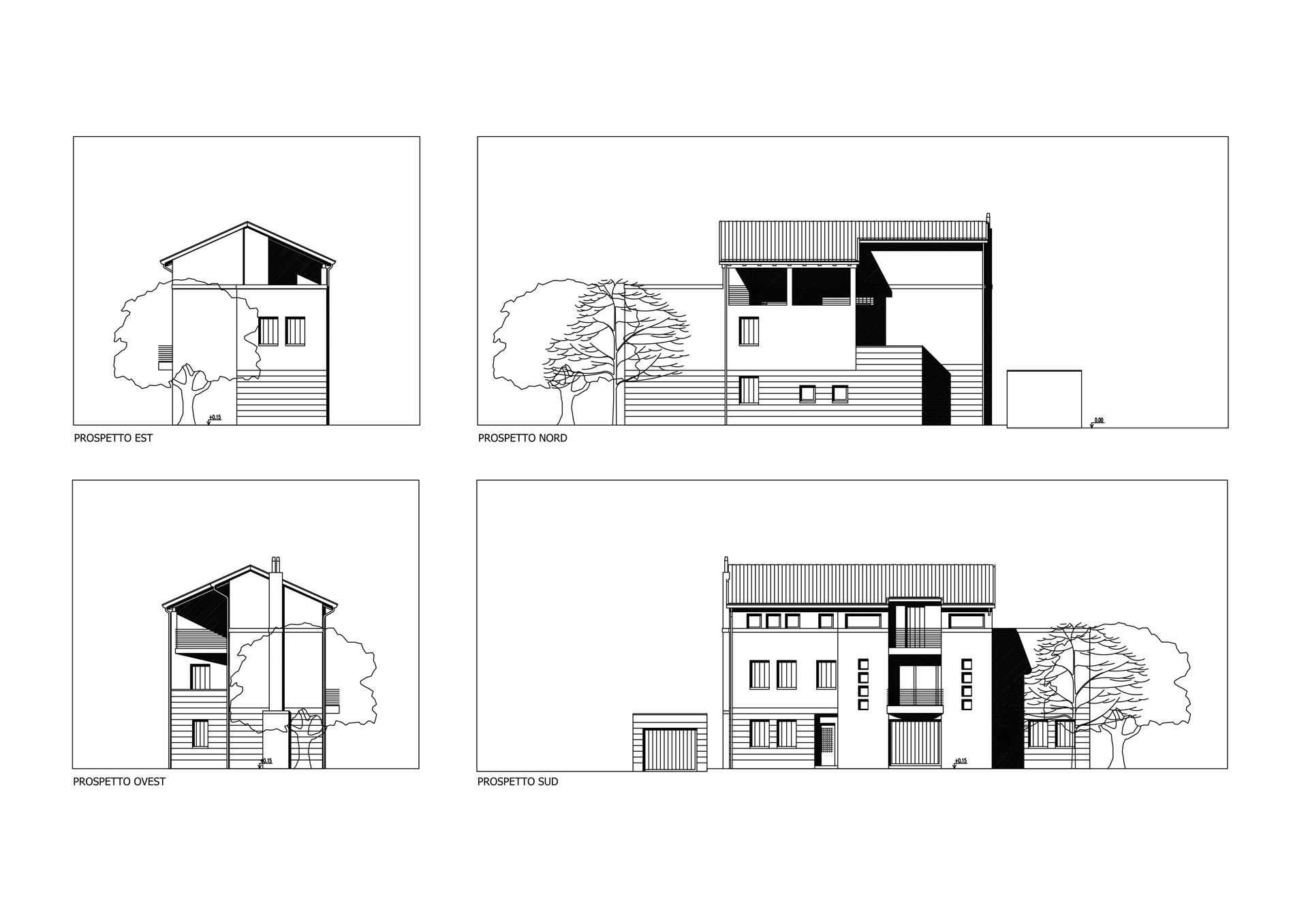
Spinea | Venezia
Costruzione di edificio bifamiliare a Spinea (VE)