Home
About
Realizzazioni
Terziario
Urbanistica
Residenziale
Pubblicazioni & Concorsi
Studi
Contatti
bar
bar
bar
bar
bar
bar
Home
About
Realizzazioni
Terziario
Urbanistica
Residenziale
Pubblicazioni & Concorsi
Studi
Contatti
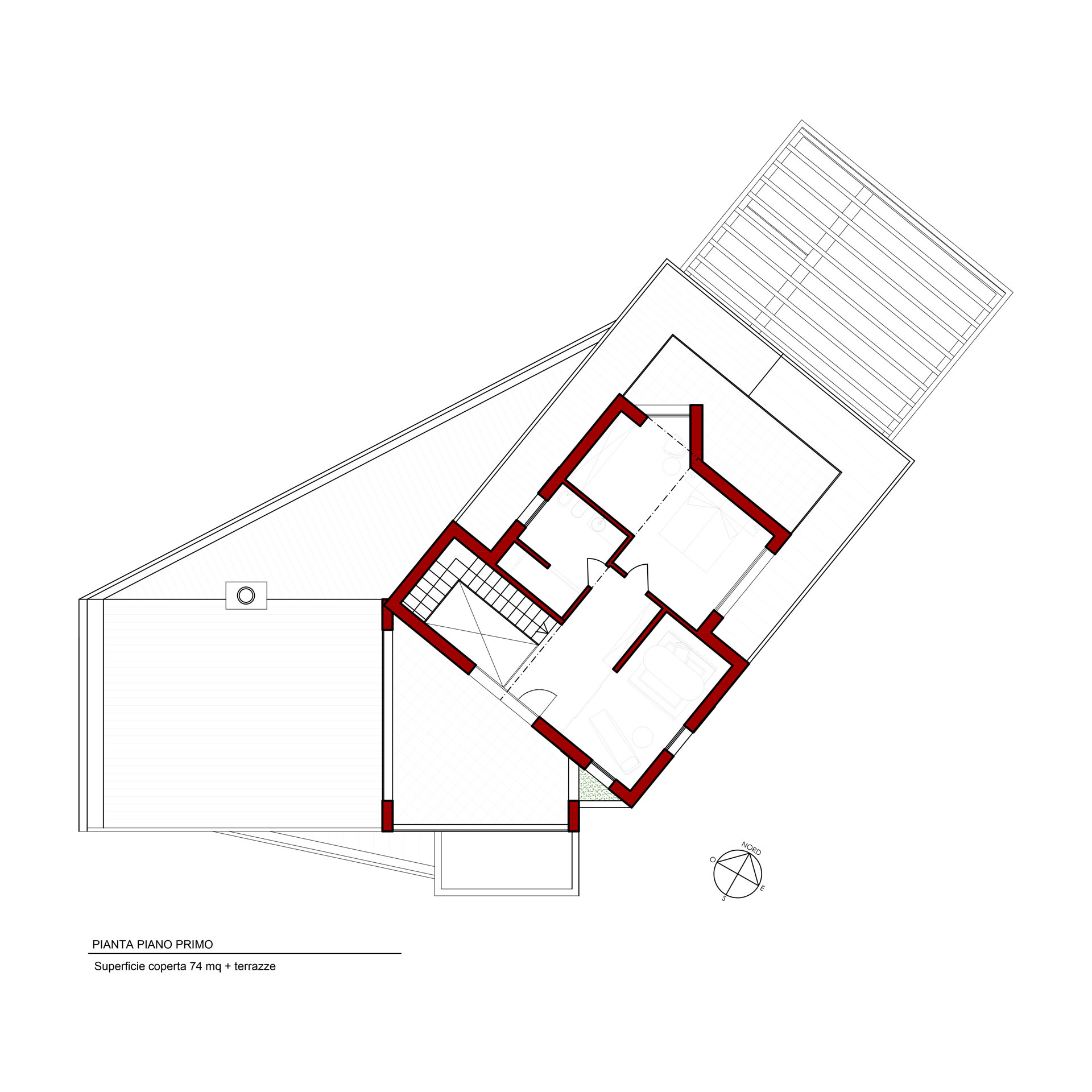
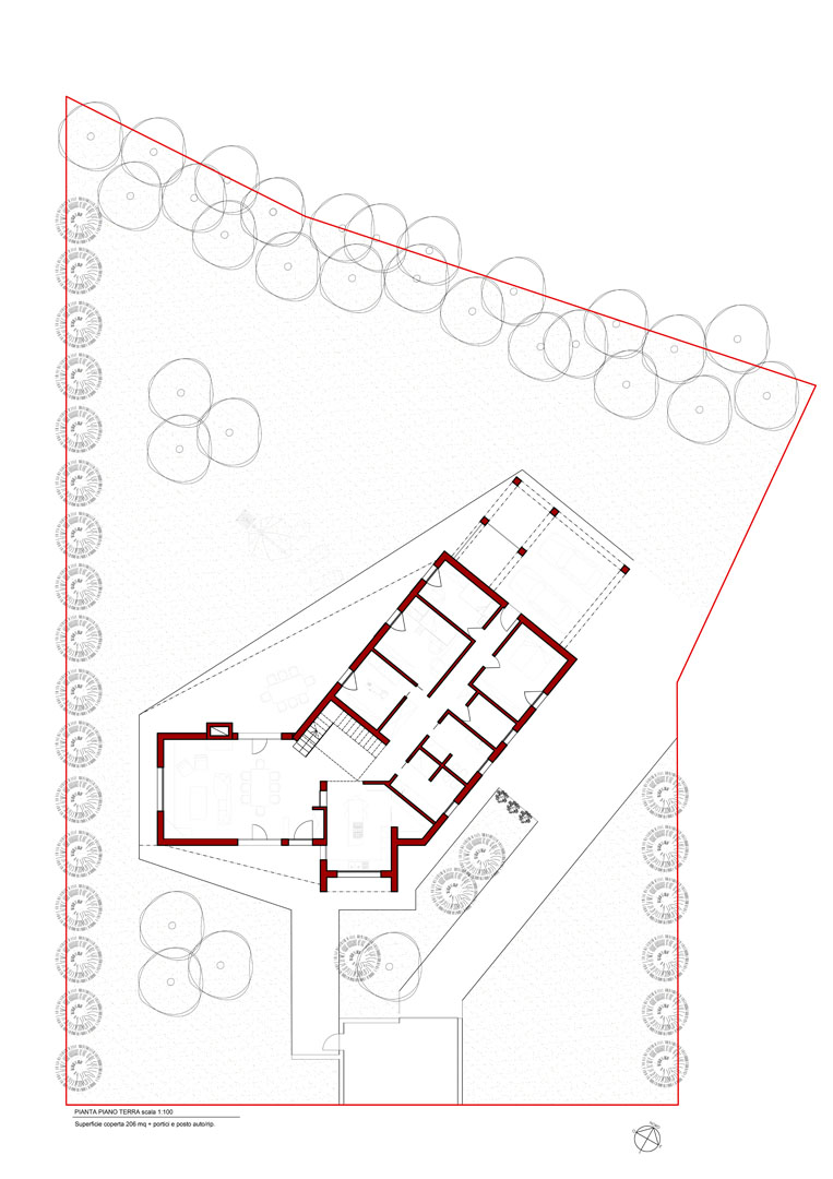
Progetto di casa in legno
Fabbricato unifamiliare in Friuli Venezia Giulia